MIR Office Building

MIR’s striking façade, made of exposed concrete and glass, exudes a sense of sophistication and modernity. The building’s carefully crafted interiors are flooded with natural light, creating a bright and welcoming atmosphere.

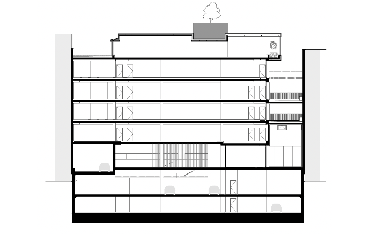
The building structure is made of monolithic exposed concrete with structural facades of concrete grids and a monolithic core. The thermal insulation is on the inside and meets the modern requirements for energy efficiency. The underground levels are built with diaphragm walls. The staircase is structurally suspended above the garage ramp and is made of precast concrete elements that are assembled on site. The building mainly uses natural materials, such as exposed concrete and titanium-zinc sheet metal facades, aluminium windows and doors, and the common areas are paved with granite slabs, terrazzo and polished concrete.

MIR is located in the heart of Sofia’s historic center, on the site of the former Mir Cinema, a well-known landmark during the socialist era. The MIR building is within walking distance of key government offices, financial institutions, and cultural landmarks, including the Sofia City Court, the Council of Ministers, and the Alexander Nevsky Cathedral.

Outdoor spaces are an inviting place to spend time and recharge. They offer a welcome respite from the hustle and bustle and a chance to reconnect with nature.

Description:
Gross area: 322.70 m2
Net area: 276.68 m2
The Ground floor plan consists of an open piazza, an office entrance, a reception area, a garden with archaeological finds, and a meeting and events space.

1. Piazza
2. Lobby
3. Retail
4. Courtyard with archeology
5. Entrance garage/ramp
6. Storage

Team: